Affordable Housing Project is Ready to Launch
Steel Structure Module Homes Project is getting Ready to Start
                    
                                    
                BRADENTON, Fla., September 22, 2025 (Newswire.com) - ASC Global Inc. is a wholly-owned subsidiary of Token Communities (OTC ID / Stock Symbol:TKCM) is announcing today that the company is getting ready to start its first steel structure model home in Florida.
According to David Champ, president and CEO of the company that ASC Global Inc. is a seasoned real estate development company in Florida and Texas, company develops high-end luxury waterfront homes in Florida and the only FTZ + QOZ dual status business park in the U.S. called " APOZ " (Asia Pacific Opportunity Zone) in the Greater Houston Metropolitan Area in Texas. As the demand for affordable housing in both Florida and Texas has been significantly increased over the past few years, and creating a huge market for quality affordable homes, therefore after three years of intense research and studies, the company is now ready to roll out its first model home in Port Charlotte, Florida.
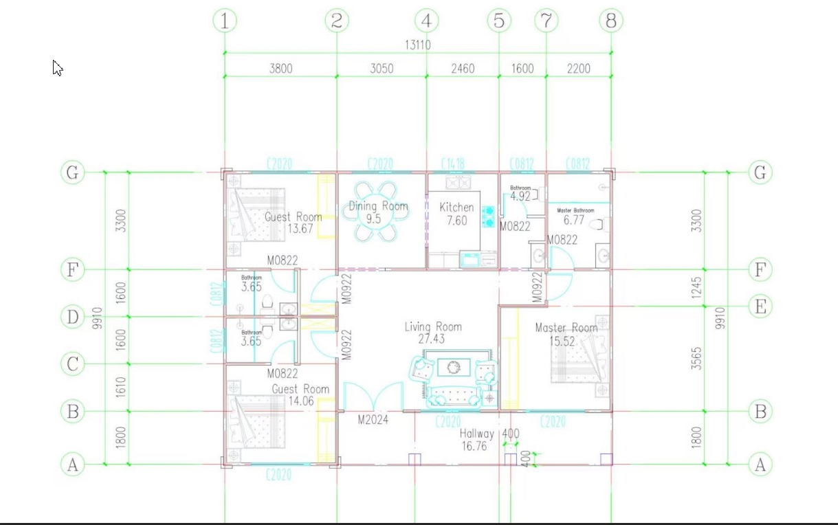
This one story 3 bedroom, 3.5 bath room, 2 car garage, spacious front porch design has 1400 sq.ft. of A/C interior space. Every bedroom has its own full bathroom which it is a very rare and convenient feature, usually only offered to expensive high-end models. The Steel Structure is ICC-ES ESR-4540 certified, it is superior against windstorm and other catastrophes, and extremely durable over other types of building materials. The company has secured various service providers to handle the architectural design, building permitting, inspections, GC (Tricor Homes) and subcontractors, ASC Global will pick an existing home sites from its land inventory to start building this model / demo home. The proposed sales price will be under $ 200,000. which is substantially lower than the current market price, and still maintain a very decent profit margin for the company.
As per Ruby Lin, a director of the company, once this first unit is completed and sold, the company will start building this model and other new models in Florida and Texas in large scale.
For further information or assistance, please contact the company at (631) 397-1111
Forward-Looking Statements
Certain information set forth in this presentation contains "forward-looking information", including "future-oriented financial information" and "financial outlook", under applicable securities laws (collectively referred to herein as forward-looking statements). Except for statements of historical fact, the information contained herein constitutes forward-looking statements and includes, but is not limited to, the (i) projected financial performance of the Company; (ii) completion of, and the use of proceeds from, the sale of the shares being offered hereunder; (iii) the expected development of the Company's business, projects, and joint ventures; (iv) execution of the Company's vision and growth strategy, including with respect to future M&A activity and global growth; (v) sources and availability of third-party financing for the Company's projects; (vi) completion of the Company's projects that are currently underway, in development or otherwise under consideration; (vi) renewal of the Company's current customer, supplier and other material agreements; and (vii) future liquidity, working capital, and capital requirements. Forward-looking statements are provided to allow potential investors the opportunity to understand management's beliefs and opinions in respect of the future so that they may use such beliefs and opinions as one factor in evaluating an investment.
These statements are not guarantees of future performance and undue reliance should not be placed on them. Such forward-looking statements necessarily involve known and unknown risks and uncertainties, which may cause actual performance and financial results in future periods to differ materially from any projections of future performance or result expressed or implied by such forward-looking statements.
Although forward-looking statements contained in this presentation are based upon what management of the Company believes are reasonable assumptions, there can be no assurance that forward-looking statements will prove to be accurate, as actual results and future events could differ materially from those anticipated in such statements. The Company undertakes no obligation to update forward-looking statements if circumstances or management's estimates or opinions should change except as required by applicable securities laws. The reader is cautioned not to place undue reliance on forward-looking statements.
SOURCE: Token Communities Ltd.
Source: Token Communities Ltd.